City 138
Elegant wohnen in der Stadt, das ist die Stadtvilla City 138. Von außen ein echter Hin-gucker, bei dem die Nachbarn neidisch werden. Von innen ist es ein angenehmes Lebens-gefühl, denn sein komfortables Raumangebot bietet der Fa-milie viele Möglichkeiten, sich zu entfalten.
Sowohl die Eltern, als auch die beiden Kinder haben ihr ei-genes "Reich", in das sie sich zurückziehen und in dem sie entspannen können. Und gemeinsame Stunden können in dem hellen Wohn- und Esszimmer gemütlich zusam-men verbracht werden.
Ähnliche Häuser
Back
Next
Alles auf einen Blick

Wohnfläche gesamt: 138 qm
Wohnfläche EG:          69 qm
Wohnfläche OG:          69 qm

Dachneigung:    25 ° / 5 ° / 0 °
Kniestock: 0 cm / 240 cm
HWR
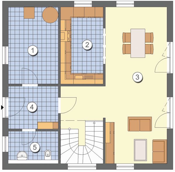
Erdgeschoss
1
2
3
4
5
Küche
Wohn- / Esszimmer
Diele
WC
Alles auf einen Blick

Wohnfläche gesamt: 134 qm
Wohnfläche EG:          67 qm
Wohnfläche OG:          67 qm

Dachneigung:    25 ° / 5 ° / 0 °
Kniestock: 0 cm / 240 cm
Eltern
Obergeschoss
1
2
3
4
5
Kind 1
Bad
Flur
Kind 2
Back
Next